6 921 782 ₽
111 822 ₽ за м²
1
квартира
61.9
общая пл.
10 из 10
этаж
Речной вокзал : 10 мин. ~10 мин
В ипотеку от
Описание
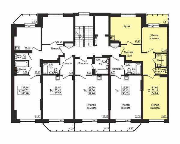
Площадь
61.9 м²
Класс
Комфорт
Отделка
Без отделки
Этажей
10/10
Комнаты
2
Расположение
О доме
Срок ввода в эксплуатацию
31 дек. 2023
Тип дома
монолит с вент. фасадом
О ЖК
Застройщик
ППК «Фонд развития территорий»
Класс
Комфорт
Способы покупки
Подробнее о ЖК «Ваш выбор»
В доме представлены одно- и двухкомнатные квартиры площадью от 38 до 70 м2. Высота потолков – 2,8 м.
Речной вокзал : 10 мин.
Подробнее о корпусе






