13 147 645 ₽
-21%
16 642 589 ₽
222 763 ₽ за м²
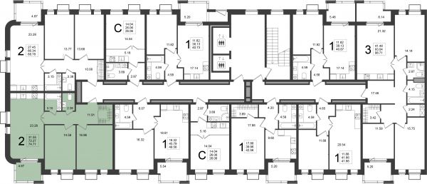
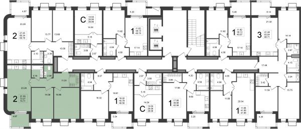
1
квартира
74.71
общая пл.
2 из 5
этаж
Ховрино : 15 мин. ~15 мин
Сходненская : 20 мин. ~20 мин
Речной вокзал : 20 мин. ~20 мин
В ипотеку от
Описание
Площадь
74.71 м²
Класс
Комфорт
Отделка
Без отделки
Этажей
2/5
Комнаты
2
Расположение
О доме
Срок ввода в эксплуатацию
31 дек. 2025
Тип дома
монолит-кирпич
О ЖК
Застройщик
Общество с ограниченной ответственностью «Специализированный застройщик Ю-Инвест»
Класс
Комфорт
Способы покупки
Подробнее о ЖК «Мишино - 2»
Ховрино : 15 мин.
Сходненская : 20 мин.
Речной вокзал : 20 мин.
Подробнее о корпусе














