10 900 000 ₽
124 714 ₽ за м²
Белые Столбы, Павелецкое направление ~8 мин
Востряково, Павелецкое направление ~9 мин
52 км, Павелецкое направление ~9 мин
Описание
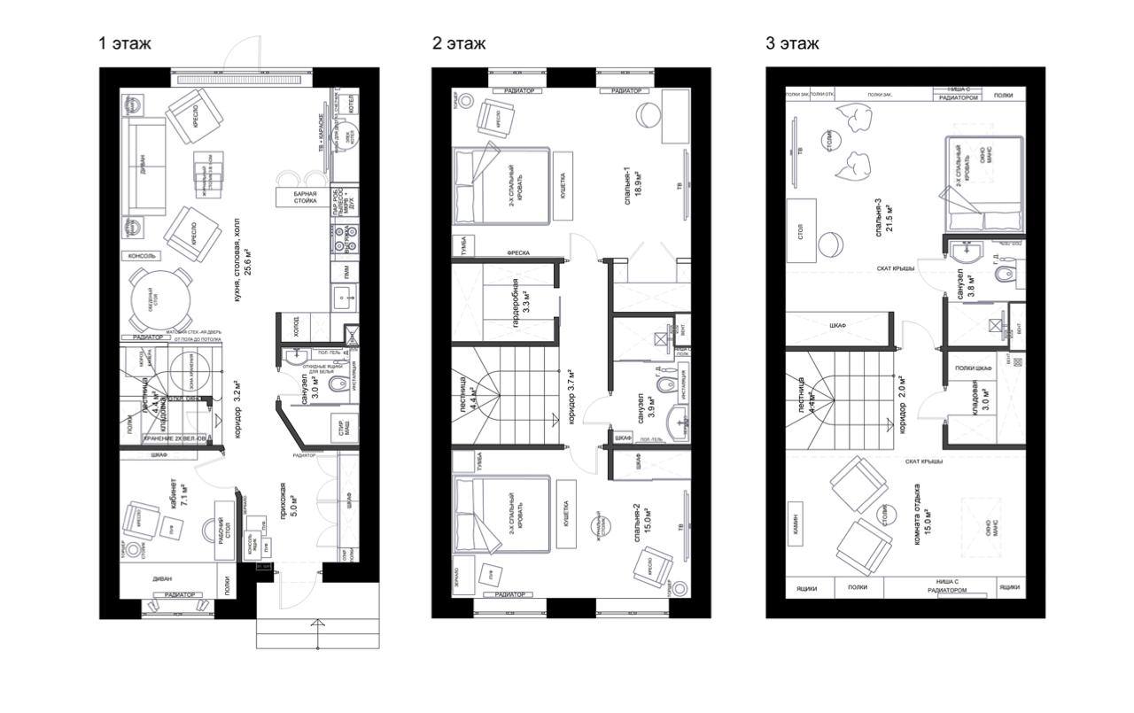
Площадь
87.4 м²
Кухня
25 м²
Жилая площадь
Балкон
нет
Этажей
2
Комнаты
Без отделки
Расположение
О доме
Общая площадь
87.4 м²
Количество этажей
2
Год постройки
2019
Об участке
Площадь
2 м²
Статус участка
Поселений (ИЖС)
Коммуникации и удобства
Газ
магистральный
Водопровод
Есть
Канализация
Есть
Электричество
Есть
ПМЖ
Есть
Охрана
Есть
Отопление
—
Изменение цены
0 ₽ (0.00%)
Цена за этот дом























