12 726 322 ₽
145 112 ₽ за м²
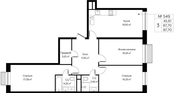
1
квартира
87.7
общая пл.
9 из 22
этаж
Некрасовка : 10 мин. ~10 мин
В ипотеку от
Описание
Площадь
87.7 м²
Класс
Комфорт
Отделка
Чистовая
Этажей
9/22
Комнаты
3
Расположение
О ЖК
Застройщик
ООО «МИЦ-ИНВЕСТСТРОЙ»
Класс
Комфорт
Подробнее о ЖК «Новоград Павлино»
Комплекс расположен в зеленом районе города Балашиха, в окружении нескольких лесопарков с благоустроенными пешеходными и велосипедными дорожками. В пешей доступности находятся магазины крупных сетей, торговый центр, рестораны, конноспортивный клуб. Удобное транспортное сообщение с Москвой обеспечено близостью новостройки к станции метро «Некрасовка» и скоростному Носовихинскому шоссе.
Некрасовка : 10 мин.
Подробнее о корпусе













