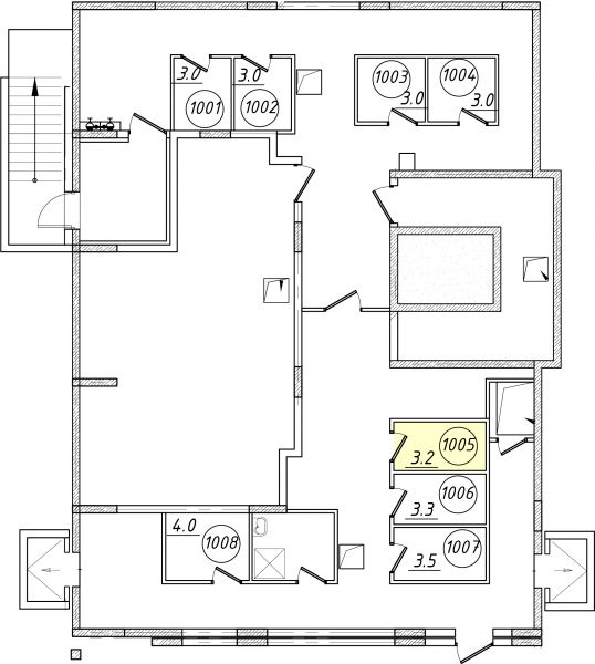
Кладовки, 3.2 м², Этаж: -1/-1, № 1005

Кладовки, 3.2 м², Этаж: -1/-1, № 1005

254 912 ₽
79 660 ₽ за м²
1
квартира
3.2
общая пл.
-1 из -1
этаж
Россия, деревня Сабурово, Рождественская улица, 5
Пятницкое Шоссе : 20 мин. ~20 мин
В ипотеку от
Описание
Площадь
3.2 м²
Класс
Комфорт
Отделка
Без отделки
Этажей
-1/-1
Комнаты
-2

Расположение

О доме

Тип дома
монолит с вент. фасадом

О ЖК

Застройщик
ППК «Фонд развития территорий»
Класс
Комфорт

Подробнее о ЖК «Митино О2»

«Митино О2» расположен в окружении Красногорского леса, который занимает площадь 2,5 тысячи Га. Комплекс построен на территории поля, окруженного лесом - в экологически благоприятном месте для жизни. Поскольку лес является заповедником, строительство новых объектов по соседству исключается. На территории леса много грибов, зимой здесь устраиваются лыжные трассы. Здесь очень тихо - Пятницкое и Волоколамское шоссе находятся на расстоянии 4 и 6 км от комплекса соответственно.

На территории сейчас возводится 4 многосекционных корпуса переменной высотности (4-8 этажей).  По проекту возводятся 9 корпусов переменной этажности, 5 домов из которых уже построены и введены в эксплуатацию.  Корпуса образуют собой практически замкнутую конфигурацию — в форме прямоугольников, трапеций или сложных многоугольников, что позволяет организовать уютное дворовое пространство для жизни - во внутренних дворах расположены детские площадки, игровые площадки, зоны воркаута, пешеходные зоны и зеленые зоны с ландшафтным дизайном. Расстояние между фасадами корпусов большое, что обеспечивает хорошее естественное освещение в квартирах.

Жилые здания строятся по монолитно-кирпичной технологии. Во внешней отделке применяются кирпич, клинкерная плитка и штукатурка. На уровне цоколя используются плиты из стеклофибробетона, отличающегося высочайшей крепостью и стойкостью по отношению к внешним влияниям. Основная масса корпусов разделяются на 2 яруса и выстроены ступенчатым образом — благодаря чему основная доля домов зрительно уходит на второй план, а акцент смещается на яркий нижний ярус.

Здесь можно приобрести квартиры от одной до 4-х комнат от 31 до 114 м² и студии комфорт класса. В большинстве квартир имеются остеклённые лоджии площадью от 3 м² или балконы, часть квартир предлагается с открытыми террасами до 20 м². В зависимости от типа и площади квартиры терраса может быть обычной или угловой с обзором на 2 стороны. Например, просторная терраса значительно увеличивает площадь 42-метровой двушки, где планируются небольшие комнаты площадью 17 и 10 м², а на кухню предполагается 6 м². А в трехкомнатной квартире площадью 73,4 м² террас даже две. К этому добавляются французские окна. Проект предусматривает более 50 планировочных решений, поэтому каждый из вас найдёт здесь комфортный вариант недвижимости. В ЖК «Митино О2» приятно и безопасно жить. Входные группы сквозные - есть возможность выхода как на улицу, так и во внутренний двор. Под некоторыми корпусами располагаются подземные паркинги. Недостающая разница по м/м будет компенсирована наземными парковками для машин, организованными вокруг каждого корпуса.

Россия, деревня Сабурово, Рождественская улица, 5
Пятницкое Шоссе : 20 мин.

Подробнее о корпусе

ЖК «Митино О2»ЖК «Митино О2»ЖК «Митино О2»ЖК «Митино О2»ЖК «Митино О2»ЖК «Митино О2»ЖК «Митино О2»ЖК «Митино О2»ЖК «Митино О2»ЖК «Митино О2»
Здравствуйте

Введите ваши контактные данные, наш менеджер свяжется с Вами в ближайшее время и ответит на интересующие вас вопросы.

Отправляя форму, вы подтверждаете своё согласие на обработку персональных данных

Наведите камеру телефона на QR-код

Чтобы набрать номер и связаться с продавцом

Номер телефона временный
СМС и сообщения в мессенджерах не будут доставлены — можете позвонить на указанный номер телефона
Кладовки, 3.2 м², Этаж: -1/-1, № 1005
Россия, деревня Сабурово, Рождественская улица, 5
Отправляя форму, вы подтверждаете своё согласие на обработку персональных данных